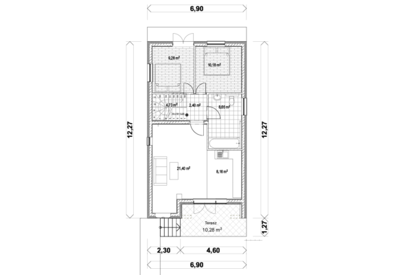
Parameters:
Total area (gross): 169.32 m²
Groundfloor gross area: 84,66 m²
Terrace: 10,28 m²
First floor gross area: 84,66 m²
Balcony: 4,10 + 3,62 m²
Check out our new IQ273 sample design.
Check out our previously published sample plans.
Do you like our new sample design? Get in touch with us.
Recommended for families with three children.
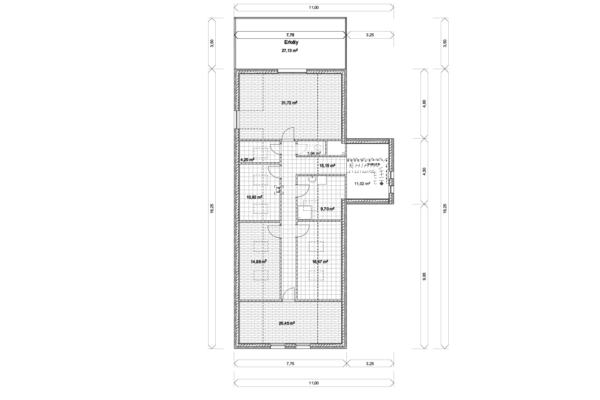
Parameters:
Ground floor plan: 163,81 m²
Terrace: 27,13 m²
Garage: 44,56 m²
First floor gross area: 163,81 m²
Balcony: 27,13 m²
Check out our new IQ274 sample design.
Check out our previously published sample plans.
Do you like our new sample design? Get in touch with us.
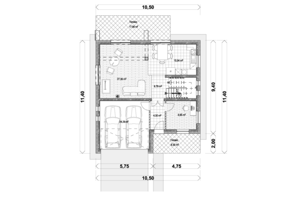
Parameters:
Total area (gross): 220.98 m²
Ground gross area: 110,49 m²
Terrace: 17,98 + 9,35 m²
First floor gross area: 110,49 m²
Balcony: 11,57 m²
Check out our new IQ275 sample design.
Check out our previously published sample plans.
Do you like our new sample design? Get in touch with us.



