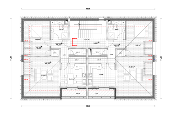
IQ290
A modern four-storey building with six apartments and a Mediterranean roof.
Parameters:
Total area (gross): 796.73 m²
Underground garage gross area: 141,14 m²
Groundfloor gross area: 218,53 m²
First floor gross area: 218,53 m²
Attic gross area:218,53 m²
Check out our previously published sample plans.
Do you like our new sample design? Get in touch with us.
Go to the sample plan
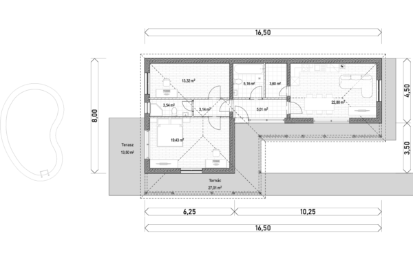
IQ291
Family house or holiday home, with a modern look, recommended for singles and young couples..
Parameters:
Total area (gross): 96.13 m²
Terrace: 11,50+27,01 m²
Check out our previously published sample plans.
Do you like our new sample design? Get in touch with us.
Go to the sample plan
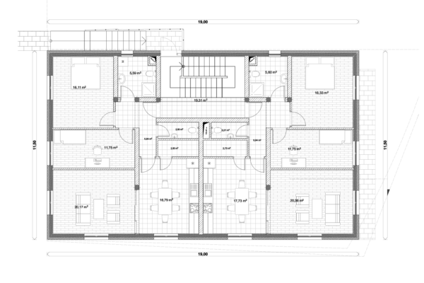
IQ292
Family house or holiday home, with a simple and clean appearance, recommended for singles and young couples.
Parameters:
Total area (gross): 87.13 m²
Terrace: 32,48 m²
Check out our previously published sample plans.
Do you like our new sample design? Get in touch with us.
Go to the sample plan



