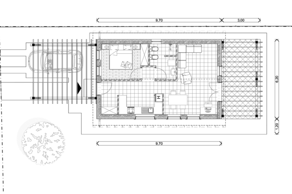
Parameters:
Total area (gross): 166.4 m²
Basement gross area: 83,2 m²
Terrace: 35,8 m²
Groundfloor gross area: 83,2 m²
Terrace: 7,36 m²
Garage: 35,05 m²
Check out our previously published sample plans.
Do you like our new sample design? Get in touch with us.
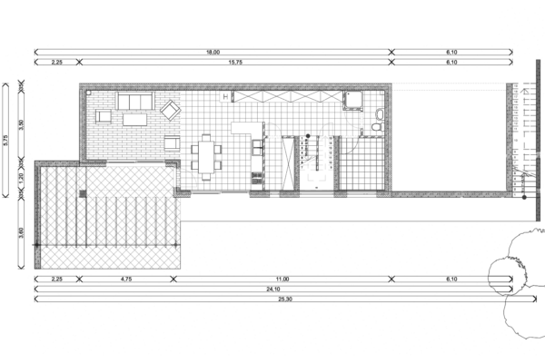
Parameters:
Total area (gross): 65.68 m²
Check out our previously published sample plans.
Do you like our new sample design? Get in touch with us.
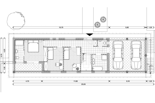
Parameters:
Total area (gross): 60.14 m²
Terrace: 18,61 m²
Carport: 24,18 m²
Check out our previously published sample plans.
Do you like our new sample design? Get in touch with us.
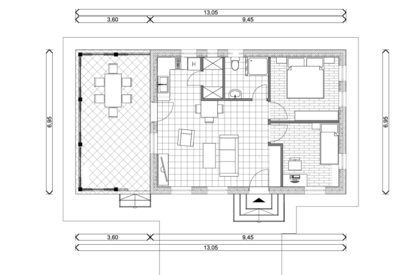
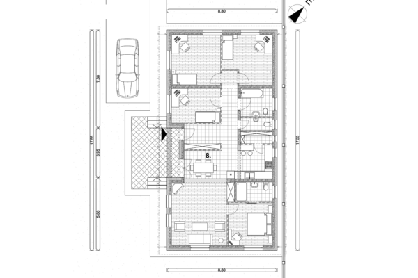
Parameters:
Total area (gross): 150.49 m²
Terrace: 19,98 m²
Garage: 37,82 m²
Check out our previously published sample plans.
Do you like our new sample design? Get in touch with us.



