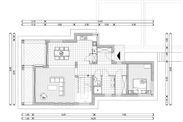
Parameters:
Total area (gross): 157.5 m²
Terrace: 44,79 m²
Check out our previously published sample plans.
Do you like our new sample design? Get in touch with us.
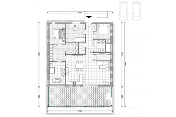
Parameters:
Total area (gross): 232.8 m²
Terrace: 12,07 + 49,50 m²
Check out our previously published sample plans.
Do you like our new sample design? Get in touch with us.
Parameters:
Total area (gross): 396.21 m²
Apartment “A”
- Groundfloor gross area: 211,64 m2
- Covered terrace: 29,95 m2
- Terrace: 23,25 m2
- Garage: 27,57 m2
Apartment “B”
- Groundfloor gross area: 184,57 m2
- Terrace: 23,25 m2
- Garage: 27,76 m2
Check out our previously published sample plans.
Do you like our new sample design? Get in touch with us.
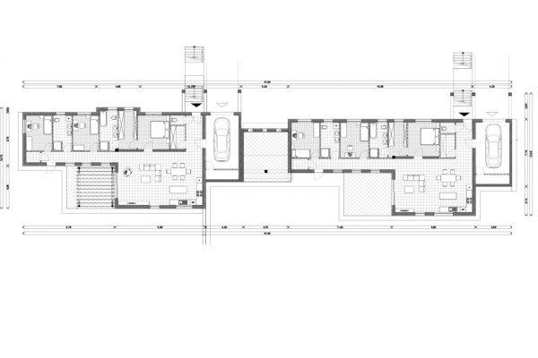
Parameters:
Total area (gross): 325.03 m²
Basement gross area: 134,38 m²
Groundfloor gross area: 113,24 m²
Terrace: 3,08+18,74 m²
Attic gross area: 77,41 m²
Terrace: 15,51 + 18,74 m²
Check out our previously published sample plans.
Do you like our new sample design? Get in touch with us.



