Parameters:
Total area (gross): 474.76 m²
Ground gross area: 256,18 m²
Terrace: 32,63 m²
First floor gross area: 218,58 m²
Terrace: 33,34
Check out our previously published sample plans.
Do you like our new sample design? Get in touch with us.
Parameters:
Total area (gross): 2436.31 m²
Groundfloor gross area: 2249,09 m²
First floor gross area: 187,22 m²
Check out our previously published sample plans.
Do you like our new sample design? Get in touch with us.
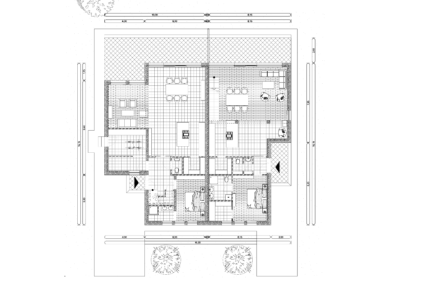
Parameters:
Total area (gross): 149.73 m²
Terrace: 25,50 m²
Check out our previously published sample plans.
Do you like our new sample design? Get in touch with us.
Parameters:
Total area (gross): 325.03 m²
Ground gross area: 121,99 m²
First floor gross area: 93,41 m²
Check out our previously published sample plans.
Do you like our new sample design? Get in touch with us.



