IQ311
Minimalist house with pool, 2 bedrooms. Ideal as a home or holiday home.
Parameters:
Total area (gross): 83.41 m²
Terrace: 8,46 m²
Check out our previously published sample plans.
Do you like our new sample design? Get in touch with us.
Go to the sample plan
IQ312
One bedroom modern family house or holiday home for couples or singles with pool.
Parameters:
Total area (gross): 78.19 m²
Terrace: 14,5 m²
Check out our previously published sample plans.
Do you like our new sample design? Get in touch with us.
Go to the sample plan
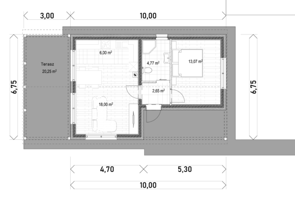
IQ313
One-bedroom family house or holiday home with bright, comfortable living space thanks to large glass surfaces.
Parameters:
Total area (gross): 57.43 m²
Terrace: 20,15 m²
Check out our previously published sample plans.
Do you like our new sample design? Get in touch with us.
Go to the sample plan



