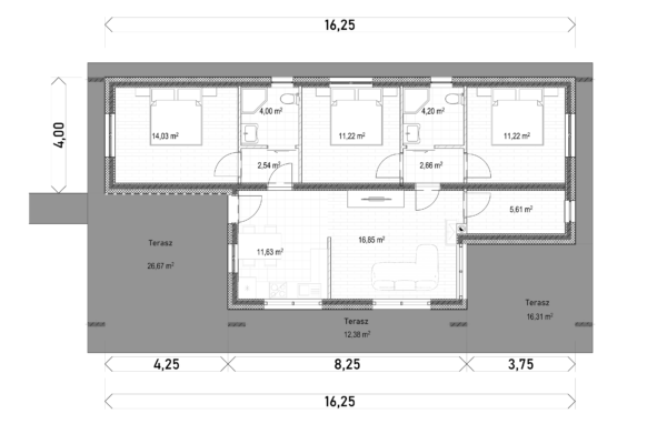
Parameters:
Total area (gross): 80 m²
Terrace: 26,87+12,38+16,31 m²
Check out our previously published sample plans.
Do you like our new sample design? Get in touch with us.
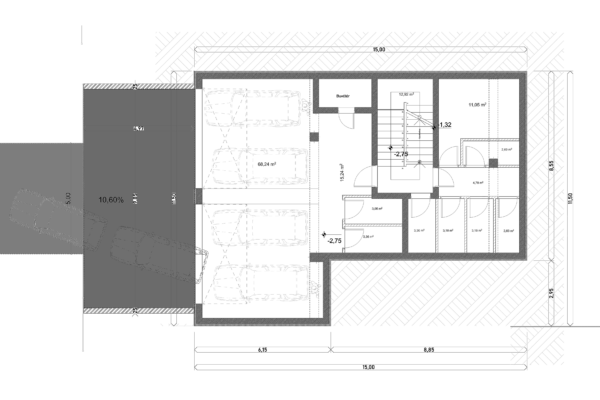
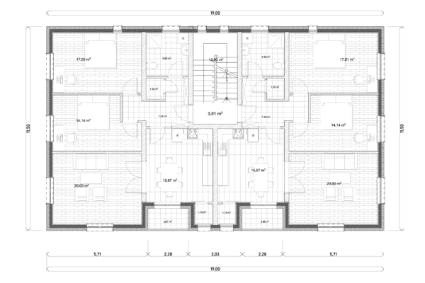
Parameters:
Total area (gross): 796.91 m²
Underground garage gross area: 141,14 m²
Groundfloor gross area: 218,59 m²
First floor gross area: 218,59 m²
Attic gross area:218,59 m²
Check out our previously published sample plans.
Do you like our new sample design? Get in touch with us.
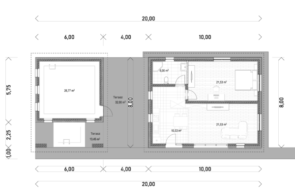
Parameters:
Total area (gross): 80 m²
Terrace: 13,45+32 m²
Check out our previously published sample plans.
Do you like our new sample design? Get in touch with us.



