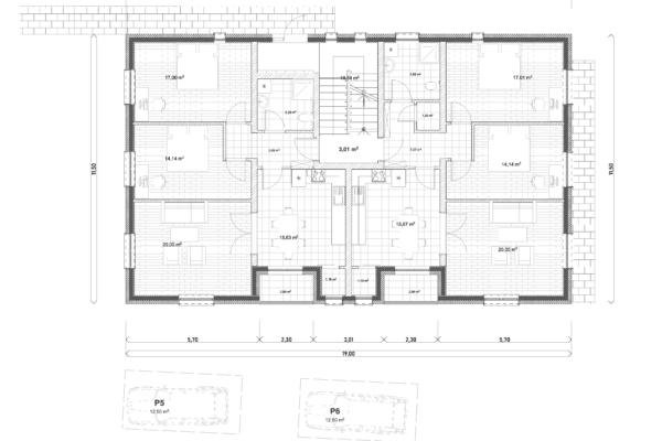
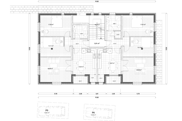
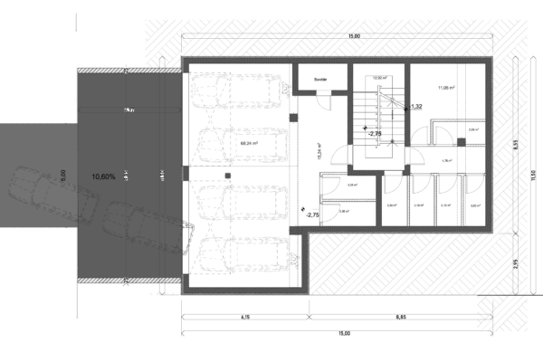
Parameters:
Total area (gross): 796.91 m²
Underground garage gross area: 141,14 m²
Groundfloor gross area: 218,59 m²
First floor gross area: 218,59 m²
Attic gross area:218,59 m²
Check out our previously published sample plans.
Do you like our new sample design? Get in touch with us.
Parameters:
Total area (gross): 186.96 m²
Groundfloor gross area: 109,81 m2
Terrace: 11,70+14,40 m²
First floor gross area: 77,15 m2
Check out our previously published sample plans.
Do you like our new sample design? Get in touch with us.
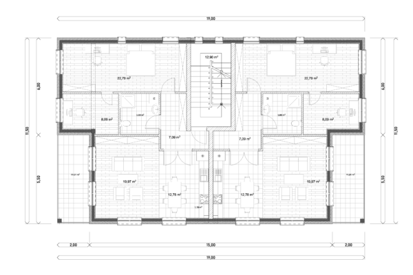
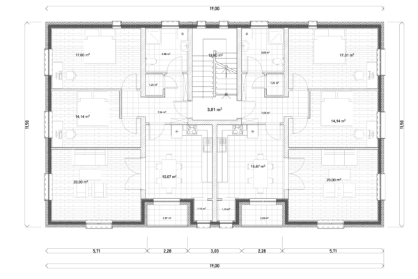
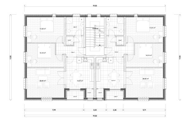
Parameters:
Total area (gross): 774.8 m²
Underground garage gross area: 141,14 m²
Groundfloor gross area: 218,59 m²
First floor gross area: 218,59 m²
Second floor gross area: 196,48 m²
Check out our previously published sample plans.
Do you like our new sample design? Get in touch with us.



