IQ320
Two bedroom detached house or holiday home with swimming pool.
Parameters:
Total area (gross): 86.6 m²
Terrace: 5,83+12,98 m²
Check out our previously published sample plans.
Do you like our new sample design? Get in touch with us.
Go to the sample plan
IQ321
Recommended for families with two children.
Parameters:
Total area (gross): 108 m²
Terrace: 21 m²
Check out our previously published sample plans.
Do you like our new sample design? Get in touch with us.
Go to the sample plan
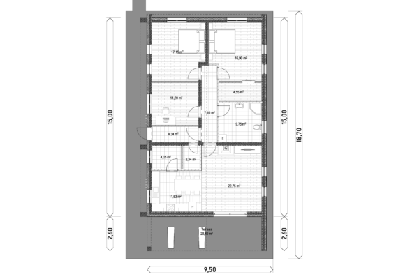
IQ322
Three bedroom detached house with pool and terrace.
Parameters:
Total area (gross): 135.2 m²
Terrace: 22,75 m²
Check out our previously published sample plans.
Do you like our new sample design? Get in touch with us.
Go to the sample plan



