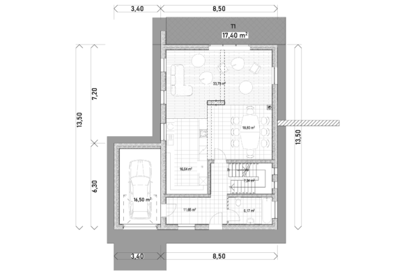
IQ323
Four bedroom semi-detached house with garage and pool for large families.
Parameters:
Total area (gross): 250.92 m²
Ground gross area: 136,17 m²
Garage: 21,42 m²
First floor gross area: 114,75 m²
Check out our previously published sample plans.
Do you like our new sample design? Get in touch with us.
Go to the sample plan
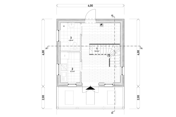
IQ324
Cozy, small weekend house.
Parameters:
Total area (gross): 72 m²
Groundfloor gross area: 36 m²
First floor gross area: 36 m²
Check out our previously published sample plans.
Do you like our new sample design? Get in touch with us.
Go to the sample plan
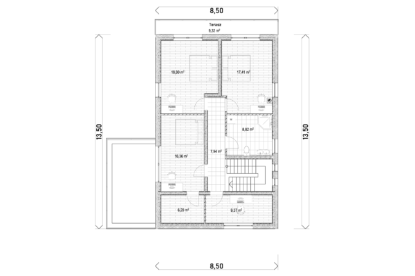
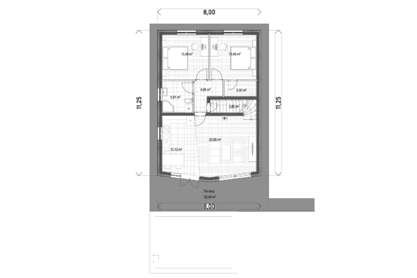
IQ325
Three bedroom two storey, cosy, comfortable family house.
Parameters:
Total area (gross): 184 m²
Groundfloor gross area: 92 m²
Terrace : 23,45 m²
First floor gross area: 92 m²
Check out our previously published sample plans.
Do you like our new sample design? Get in touch with us.
Go to the sample plan



