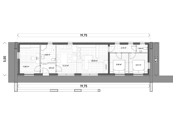
IQ332
Spacious, three bedroom detached house with a traditional and modern look.
Parameters:
Total area (gross): 98,75 m²
Check out our previously published sample plans.
Do you like our new sample design? Get in touch with us.
Go to the sample plan
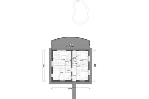
IQ333
Two bedroom detached house or holiday home with swimming pool.
Parameters:
Total area (gross): 87,13 m²
Terrace: 32,48 m²
Check out our previously published sample plans.
Do you like our new sample design? Get in touch with us.
Go to the sample plan
IQ334
Compact, flat-roofed holiday home that can also function as a family home for young couples.
Parameters:
Total area (gross):80 m²
Terrace:28 m²
Check out our previously published sample plans.
Do you like our new sample design? Get in touch with us.
Go to the sample plan



