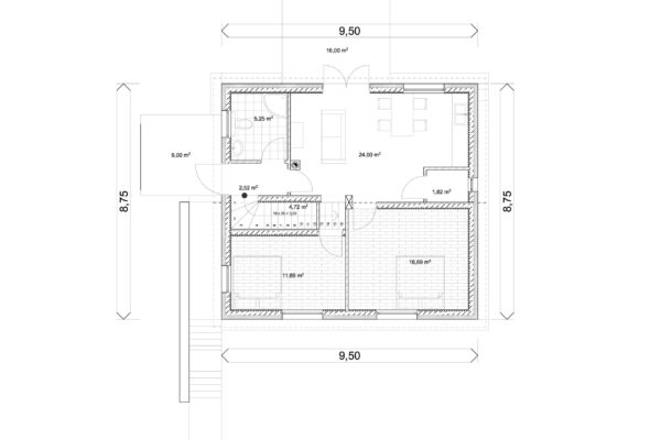
Multi-bedroom, two-storey family house or holiday home for families with several children.
Total area (gross): 166.26 m²
Ground gross area: 83,13 m²
First floor gross area: 83,13 m²
Check out our previously published sample plans.
Do you like our new sample design? Get in touch with us.
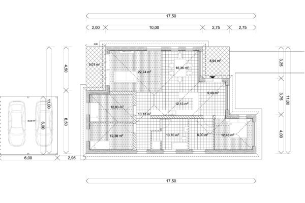
The building is ideal for families with 2-3 children. The modern look and large glass surfaces make the building unique.
Total area (gross): 296 m²
Check out our previously published sample plans.
Do you like our new sample design? Get in touch with us.
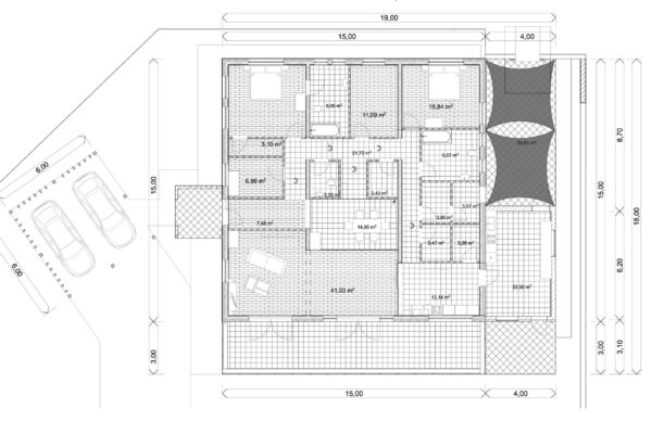
Mediterranean style family house or holiday home with three bedrooms for large families.
Total area (gross): 155.31 m²
Terrace: 8,94 m²
Garage: 36 m²
Check out our previously published sample plans.
Do you like our new sample design? Get in touch with us.



