IQ356
Modern, stylish, two-bedroom detached house.
Total area (gross): 115 m²
Terrace: 19,53 m²
Check out our previously published sample plans.
Do you like our new sample design? Get in touch with us.
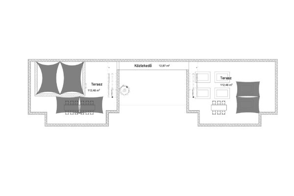
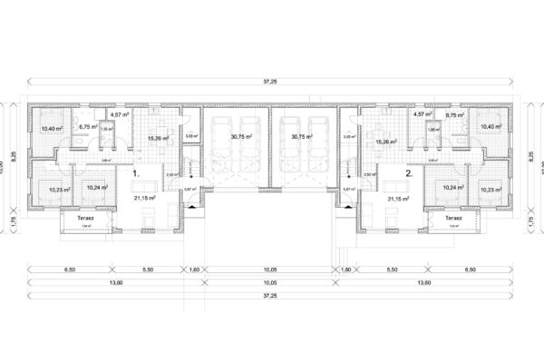
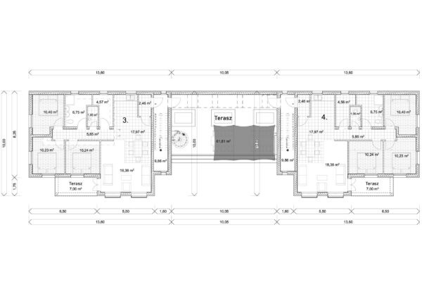
IQ357
Two-storey apartment building with 4 flats and terraces on the flat roof.
Total area (gross): 554.87 m2
Groundfloor gross area: 311,69 m2
First floor gross area: 243,18 m2
Flat roof terrace: 112,48+112,48 m2
Check out our previously published sample plans.
Do you like our new sample design? Get in touch with us.
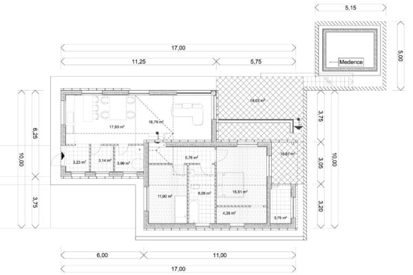
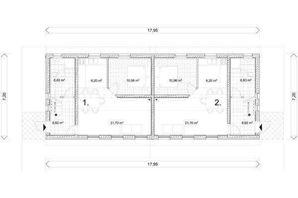
IQ358
A three bedroom semi-detached house with a modern look.
Total area (gross): 258.48 m²
Ground gross area: 129,24 m²
First floor gross area: 129,24 m²
Check out our previously published sample plans.
Do you like our new sample design? Get in touch with us.



