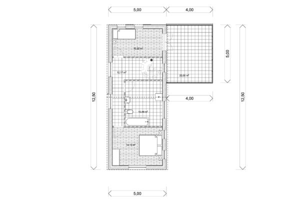
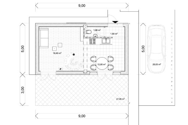
Comfortable and modern family home or holiday home with terrace and carport.
Total area (gross): 107.5 m²
Groundfloor gross area: 45 m²
Terrace : 27 m²
Carport: 28,03 m²
First floor gross area: 62,5 m²
Terrace: 20 m²
Check out our previously published sample plans.
Do you like our new sample design? Get in touch with us.
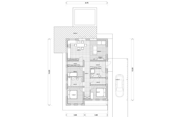
Mediterranean style family house or holiday home with three bedrooms for large families.
Total area (gross): 117.7 m²
Terrace: 29,94 m²
Carport: 37,39 m²
Check out our previously published sample plans.
Do you like our new sample design? Get in touch with us.
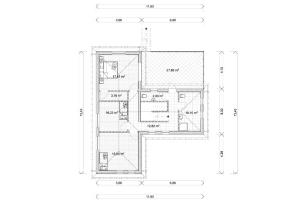
Multi-bedroom, semi-detached house for large families.
Total area (gross): 202.5 m²
Ground gross area: 101,25 m²
Terrace: 21+27,88 m²
First floor gross area: 101,25 m²
Terrace: 27,88 m²
Check out our previously published sample plans.
Do you like our new sample design? Get in touch with us.



