Ideal family house for families with two children.
Total area (gross): 178.05 m²
Terrace: 16,02 m²
Check out our previously published sample plans.
Do you like our new sample design? Get in touch with us.
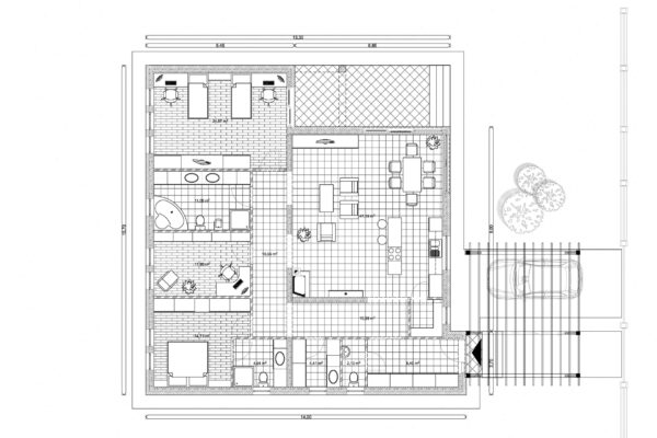
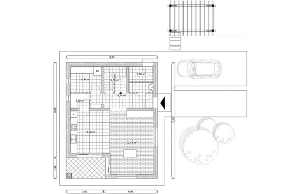
A modern family house with a Mediterranean roof, ideal for families with one or two children.
Total area (gross): 131.19 m²
Terrace: 42,93 m²
Check out our previously published sample plans.
Do you like our new sample design? Get in touch with us.
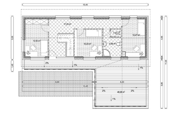
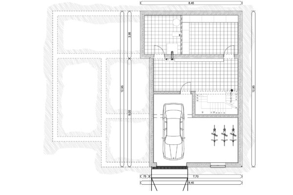
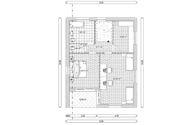
Two-storey family house or holiday home for families with several children.
Total area (gross): 162.22 m²
Ground gross area: 80,73 m²
Terrace: 6,84 m²
First floor gross area:81,49 m²
Terrace: 6,08 m²
Check out our previously published sample plans.
Do you like our new sample design? Get in touch with us.
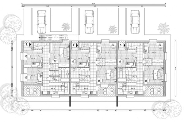
Two storey, 4 apartment building with large terraces.
Total area (gross): 426.15 m²
Groundfloor gross area: 284,39 m2
First floor gross area: 141,76 m2
Check out our previously published sample plans.
Do you like our new sample design? Get in touch with us.
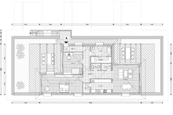
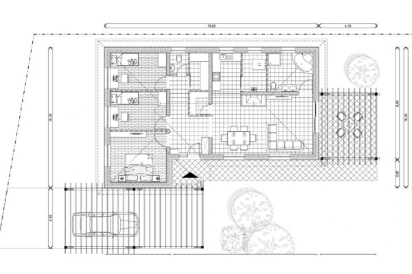
The building is suitable for free standing or plot boundary standing, recommended for families with two children.
Total area (gross): 253.99 m²
Basement gross area: 102,68 m²
Ground floor gross area:151,31 m²
Terrace: 43,81 m²
Check out our previously published sample plans.
Do you like our new sample design? Get in touch with us.
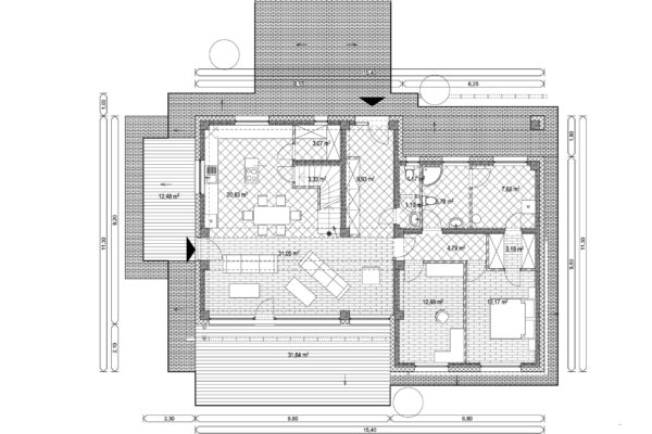
Perfect for large families, two-storey family house.
Total area (gross): 227.1 m²
Ground floor gross area:144,71 m²
Terrace: 30,96+12,48 m²
First floor gross area:82,39 m²
Terreace: 30,96+12,48 m²
Check out our previously published sample plans.
Do you like our new sample design? Get in touch with us.



