Sample plan:
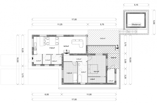
IQ252 sample plan is a building of 115 square meters with a swimming pool as well which is a perfect choice for weekends or even holiday breaks.
Recommended for families and groups of friends.
Sample plan:
IQ252 sample plan is a building of 115 square meters with a swimming pool as well which is a perfect choice for weekends or even holiday breaks.
Recommended for families and groups of friends.
