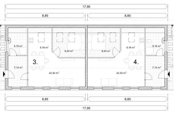
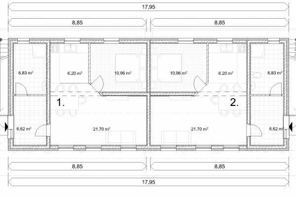
Sample plan:
Our latest sample plan is a two-storey, 4-apartment condominium with a total area of more than 258 m². Each apartment has an American living room and one bedroom.
Parameters of the building:
Ground floor gross area: 129.24 m2
Storey gross floor area: 129.24 m2 m²
Total area per apartment: 64.62 m2
Ground floor gross area: 129.24 m2
Storey gross floor area: 129.24 m2 m²
Total area per apartment: 64.62 m2
Check out our new IQ245 sample plan!
Check out our previously published sample plans.
Do you like our new sample plan? Contact us!



