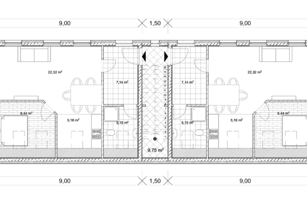
Sample plan:
Our latest sample plan is a two-storey, 4-apartment condominium with a total area of 280.8 m².
Parameters of the building:
Ground floor:
Ground floor gross area: 140,40 m2
1st apartment net area: 51,98 m2
2nd apartment net area: 51,98 m2
Storey:
First floor gross area: 140,40 m2
3rd apartment net area: 49,21 m2
4th apartment net area: 49,21 m2
Check out our new IQ248 sample plan!
Check out our previously published sample plans.
Do you like our new sample plan? Contact us!



