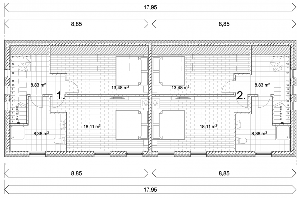
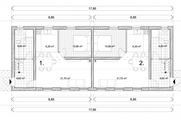
Sample plan:
Our latest sample plan is a two-storey, 2-apartment semi-detached house with a total gross area of 258.48 m². Net area per apartment is 101,11 m².
Parameters of the building:
Ground floor:
Ground floor gross area: 129,24 m2
1st apartment net area: 52,31 m2
2nd apartment net area: 52,31 m2
Storey:
First floor gross area: 129,24 m2
1st apartment net area: 48,8 m2
2nd apartment net area: 48,8 m2
Check out our new IQ249 sample plan!
Check out our previously published sample plans.
Do you like our new sample plan? Contact us!



