Sample plan:
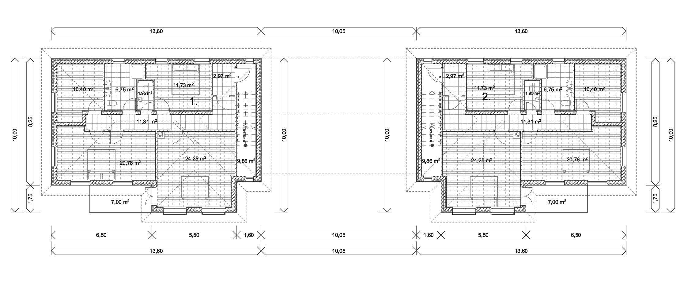
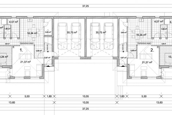
Our latest sample plan is a very spacious two-storey, 2-apartment semi-detached house with a total gross area of 554.85 m². Gross area per apartment is 277,425 m².
Parameters of the building:
Ground floor:
Ground floor gross area: 311,69 m2
1st apartment net area: 98,44 m2
Garage: 30,75 m2
2nd apartment net area: 98,44 m2
Garage: 30,75 m2
Storey:
First floor gross area: 243,16 m2
1st apartment net area: 100,2 m2
2nd apartment net area: 100,2 m2
Check out our new IQ250 sample plan!
Check out our previously published sample plans.
Do you like our new sample plan? Contact us!



