Sample plan:
Our latest sample plan is a large two-storey, 4-apartment twin house with a total gross area of 554.85 m². Net area per apartment is more than 98 m².
Parameters of the building:
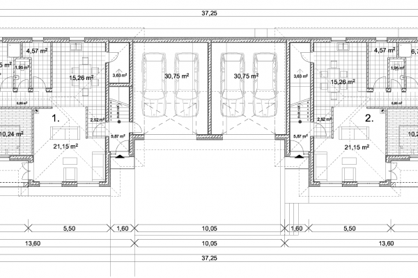
Ground floor:
Ground floor gross area: 311,69 m2
1st apartment net area: 98,44 m2
Garage: 30,75 m2
2nd apartment net area: 98,44 m2
Garage: 30,75 m2
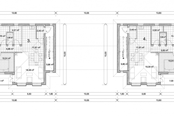
Storey:
First floor gross area: 243,16 m2
3rd apartment net area: 98,64 m2
4th apartment net area: 98,64 m2
Check out our new IQ251 sample plan!
Check out our previously published sample plans.
Do you like our new sample plan? Contact us!



