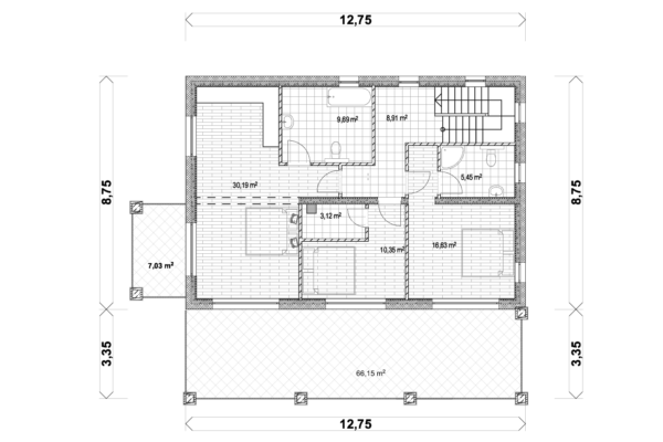
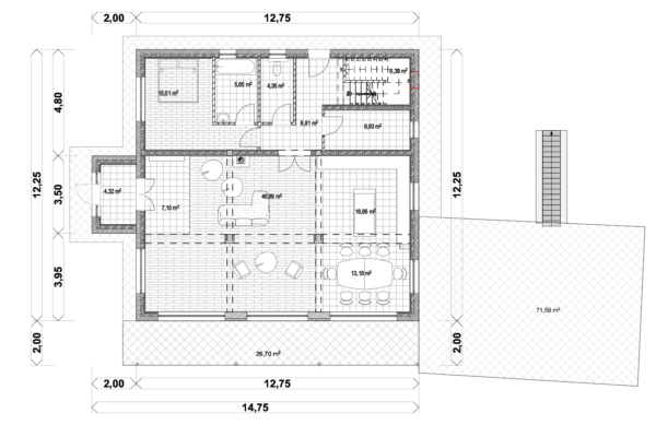
IQ266 – Two-storey, flat-roofed family house
Sample plan:
IQ266
Two-storey family house with large terraces, recommended for families with two children.
Total area (gross): 274,75 m²
Groundfloor gross area: 163,19 m²
Terrace: 26,70 m² + 71,59 m²
First floor gross area: 111,56 m²
Balcony: 7,03 m² + 66,15 m²



