Our sample plan collection has expanded!
Two wonderful family houses and a holiday home await its residents!
IQ253
IQ253
Minimalist cottage with large glass surfaces.
Holiday home, single storey, flat roof
Total size: Gross area: 85.50 m2
Go to the sample plan page
IQ254
IQ254
Family house with swimming pool, terrace and driveway.
Family house, single storey, with traditional roof.
Total size: Gross area: 113.75 m2
Terrace: 29.94 m2
Garage: 36.12 m2
Go to the sample plan page
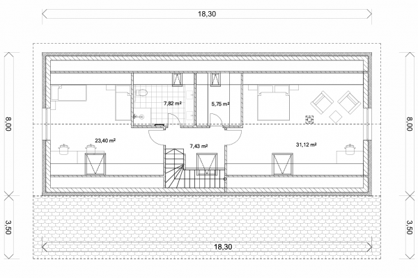
IQ255
IQ255
Two-storey family house for families with up to two or three children.
Family house with two floors, traditional roof.
Total size: Gross area: 231.9 m2
Ground floor: Gross 85.50 m2
First floor: Gross 146.40 m2
Go to the sample plan page



